
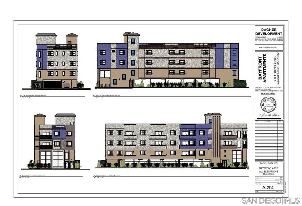
Prime development opportunity! This rare coastal asset is a shovel-ready mixed-use development opportunity with fully approved building and grading plans for a 10-unit apartment building plus 1 ground-floor commercial space in the core of Imperial Beach. The approved design maximizes density and unit efficiency while capitalizing on potential future ocean and Downtown San Diego skyline views. The project is ideally positioned to attract long-term tenants and commercial users due to its proximity to the beach, major employment centers, retail corridors, and regional transit. The unit mix and modern design provide strong rent growth potential and favorable operating efficiencies. With entitlements secured, developers potentially benefit from a shortened construction timeline, reduced entitlement risk, and immediate vertical development potential. This asset offers multiple exit strategies, including long-term hold for stabilized cash flow, refinance upon lease-up, or sale as a newly constructed coastal multifamily investment in a supply-constrained market. This is a turnkey opportunity to develop a premium mixed-use project in one of Southern California's fastest growing coastal communities. Prime development opportunity! This rare coastal asset is a shovel-ready mixed-use development opportunity with fully approved building and grading plans for a 10-unit apartment building plus 1 ground-floor commercial space in the core of Imperial Beach. The approved design maximizes density and unit efficiency while capitalizing on potential future ocean and Downtown San Diego skyline views. The project is ideally positioned to attract long-term tenants and commercial users due to its proximity to the beach, major employment centers, retail corridors, and regional transit. The unit mix and modern design provide strong rent growth potential and favorable operating efficiencies. With entitlements secured, developers potentially benefit from a shortened construction timeline, reduced entitlement risk, and immediate vertical development potential. This asset offers multiple exit strategies, including long-term hold for stabilized cash flow, refinance upon lease-up, or sale as a newly constructed coastal multifamily investment in a supply-constrained market. This is a turnkey opportunity to develop a premium mixed-use project in one of Southern California's fastest growing coastal communities.
The multiple listing data appearing on this website, or contained in reports produced therefrom, is owned and copyrighted by California Regional Multiple Listing Service, Inc. ("CRMLS") and is protected by all applicable copyright laws. Information provided is for viewer's personal, non-commercial use and may not be used for any purpose other than to identify prospective properties the viewer may be interested in purchasing. All listing data, including but not limited to square footage and lot size is believed to be accurate, but the listing Agent, listing Broker and CRMLS and its affiliates do not warrant or guarantee such accuracy. The viewer should independently verify the listed data prior to making any decisions based on such information by personal inspection and/or contacting a real estate professional.
Based on information from California Regional Multiple Listing Service, Inc. as of the most recent time synced and /or other sources. All data, including all measurements and calculations of area, is obtained from various sources and has not been, and will not be, verified by broker or MLS. All information should be independently reviewed and verified for accuracy. Properties may or may not be listed by the office/agent presenting the information
Last Updated:Â . Source: CRMLS
Provided By
Listing Agent: Ashraf Salim (#SAND-630680)
Listing Office: SDpremier (#SAND-3328)

Get an estimate on monthly payments on this property.
Note: The results shown are estimates only and do not include all factors. Speak with a licensed agent or loan provider for exact details. This tool is sourced from CloseHack.